ST1416 P

RAVNICE, VIŠEETAŽNA KUĆA, ETAŽIRANA!

- Mogućnost kupnje cijele kuće koja se sastoji od 4 etažne jedinice: 3-sobnog stana u prizemlju (156,42 m2), garsonjere u suterenu (53,70m2), 3-sobnog stana na 1. katu (106,35 m2) te 3-sobnog stana na 2. katu (98,11m2) - sve prema kvadraturama iz Etažnog elaborata.

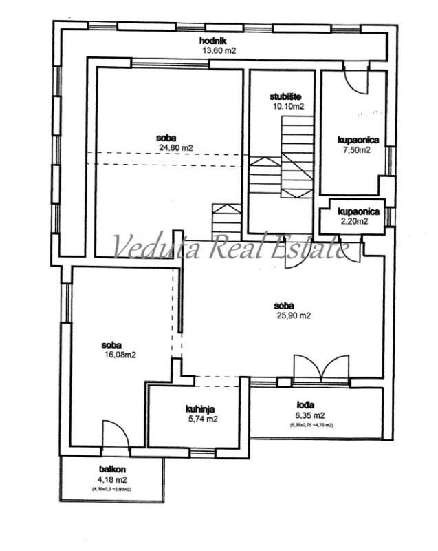
Prodaje se trosoban stan u višeetažnoj kući, etažiran, 1. kat, ukupne tlocrtne površine: 106,35 m2.

U korisnu kvadraturu trosobnog stan vel. 102,67 m2 ulaze: dvije sobe, dvije kupaonice, dnevni boravak, kuhinja, balkon 4,18 m2 (koris. povr. 2,09 m2) i loggia 6,35 m2 (koris. povr. 4,76 m2). 

Pripadajući parking oko kuće.

Etažni elaborat izražen i ovjeren, provedba elaborata je u tijeku.

Cijena na upit

Šifra: 
ST1416 P
Regija: 
Zagreb
Općina/Naselje: 
Maksimir
Lokacija: 
Ravnice
Zagreb
Tip stana: 
u kući
Površina (m2): 
106.00
Prodaja/Najam: 
prodaja
Namješteno: 
ne
Godina izgradnje: 
1986
Godina zadnje adaptacije: 
2020
Novogradnja: 
ne
Kat: 
1. kat
Orijentacija: 
jug, istok, zapad
Sobnost: 
3-3.5 sobni
Spavaće sobe: 
2
Kupaona/WC: 
1
Grijanje: 
etažno plinsko
Telefon: 
ne
Dizalo: 
ne
Balkon/Terasa (m2): 
balkon i lođa
Parking: 
privatni parking
Stanje nekretnine: 
u održavanom stanju
Prodano/Iznajmljeno: 
ne
Cijena (EUR): 
na upit