PALMOTIĆEVA, GORNJI DIO, ODLIČNA CIJENA!
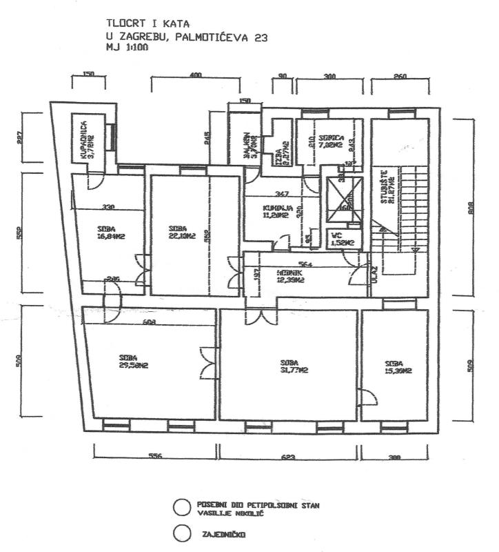
Prodaje se 5.5. sobni građanski stan, vel. 153 m2 (po izmjeri), stropova visine 3,70 m. Stan se sastoji od 3 salonske sobe u nizu od kojih jedna ima mogućnost zasebnog ulaza sa vanjskog stubišta, dvije sobe orijentirane na dvorišnu stranu, kuhinje, djevojačke sobe, kupaone i izdvojenog toaleta te dvorišnog balkona. Dvije vertikale. Izuzetno adaptibilan tlocrt. Zgrada sa svega nekoliko stanova. Stanu pripada 30,74 m2 tavana. U tijeku obnova krovišta. Cijena: 239.000,00 €
Agencijska provizija 2% + PDV