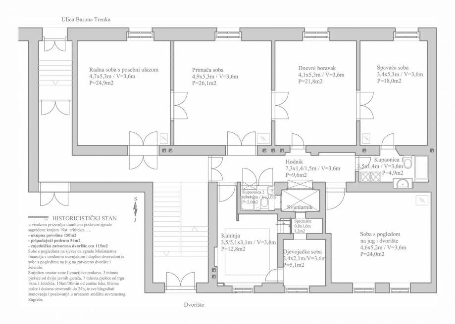
Excellent location in the most center of the Zagreb, close to the city parks, location: Baruna Trenka Street/ Gajeva Street, 5.5 bedroom apartment size 150 m2, high ground floor, ideal for law office, showroom, bookkeeping.. Perfect floor plan, four salon rooms in the row, each have a separete entrance from the hallway, two room on courtyard side, two bathrooms. Price: 1.500 €/month. Deposit: 2 rentals